
合肥鑄鐵T型槽平臺生產前需要知道的數據
T型槽平臺,T型槽鑄鐵平臺,鑄鐵T型槽工作臺,T型槽平板,大型拼接T型槽平臺,高質量,重服務生產廠家泊頭北重,鑄鐵T型槽平臺廠家其它產品有T型槽彎板,方箱,鐵地板,地軌平尺,大理石平臺等機床量具暢銷世界各地.
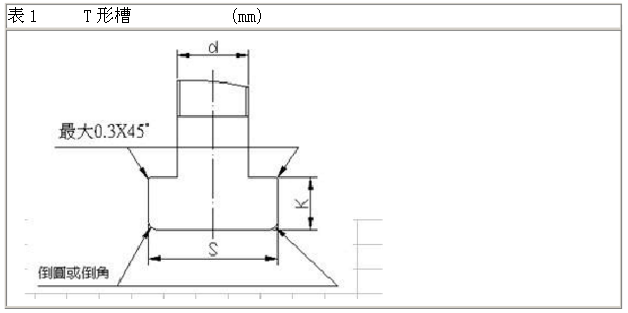
很多用戶在咨詢鑄鐵T型槽平臺時,不能提供需要T型槽鑄鐵平臺的具體參數,導致技術部不能及時為您提供質優價廉的產品。為了方便廣大用戶,在這里北重為客戶準備了一個圖紙里面標明了所需要的數據。以后如果有需要訂購T型槽平臺或T型槽彎板等產品時,可按下面圖中標明的幾項提供數據。
1. 平臺的規格
2. 槽開口的大小(根據使用的螺栓大小設計,槽都是標準的)
3. 開槽的數量
4. 槽與槽之間的距離,開槽的方面
5. 鑄鐵T型槽平臺需要的承重(根據承重設計實心面板厚度)
6. 鑄鐵T型槽平板精度(一般小規格的是2級精度,大規格的是3級精度,要求精度高的要精刮)
注意事項
鑄鐵T型槽平臺的生產過程為 :做型—鑄造—機床加工—刮研—檢驗—包裝—發貨或入庫。 鑄鐵平板在生產的過程中需要經過兩次回火處理,然后上機床加工,最后人工刮研。
經過兩次回火后平臺的精度更加穩定,耐磨性能更好,人工刮研可以使鑄鐵T型槽平臺達到理想的精度。